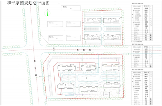
该项目为原红旗车辆厂家属院和部分厂区棚改项目,规划总用地面积30405.04㎡,总建筑面积109050㎡,地上建筑面积80850㎡,地下建筑面积28200㎡,项目总占地约42亩,总拆迁面积为约2.9万平方米,总建筑面积约11万平方米,还建面积约3万平方米,总投资约5亿元人民币。由区财金集团与临沂润正房地产开发有限公司合作开发。

规划总平面图
该项目为原红旗车辆厂家属院和部分厂区棚改项目,规划总用地面积30405.04㎡,总建筑面积109050㎡,地上建筑面积80850㎡,地下建筑面积28200㎡,项目总占地约42亩,总拆迁面积为约2.9万平方米,总建筑面积约11万平方米,还建面积约3万平方米,总投资约5亿元人民币。由区财金集团与临沂润正房地产开发有限公司合作开发。

规划总平面图