[文体工程] 茶芽山文康旅片区抗日纪念馆项目
发布日期:2020-04-02 发布者:兰山区财金集团
园区位于李官镇,总投资10.7亿元,占地500亩,总建筑面积7.73万㎡。其中茶芽山抗日纪念馆由区财金集团投资建设,拟打造成全区爱国主义教育基地,项目占地10亩,建筑面积6500平方米,预计总投资6000万元。
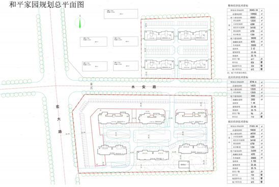
[住房保障] 和平机械厂项目(和平家园)
发布日期:2020-04-02 发布者:兰山区财金集团
该项目为原红旗车辆厂家属院和部分厂区棚改项目,规划总用地面积30405.04㎡,总建筑面积109050㎡,地上建筑面积80850㎡,地下建筑面积28200㎡,项目总占地约42亩,总拆迁面积为约2.9万平方米,总建筑面积约11万平方米...
[教育工程] 临沂市兰山区金雀山街道中心幼儿园二园
发布日期:2020-04-02 发布者:兰山区财金集团
该园临沂市兰山区金雀山路与沂州路交汇_向北150米路西,总用地面积3040.9平方米,总建筑面积3039平方米,建设4层教学楼1栋。总投资2887万元。
[教育工程] 临沂市兰山区银雀山街道中心幼儿园金雀山路园
发布日期:2020-04-02 发布者:兰山区财金集团
该园位于兰山区金雀山路与八- -路交汇处东北角,项目总用地面积2505平方米,总建筑面积4572平方米,建设1栋地上三层地下一 层教学楼。项目总投资约2880万元。
[教育工程] 临沂第六中学三级部
发布日期:2020-04-02 发布者:兰山区财金集团
学校位于兰山区银雀山路与曦之路交汇西北角,项目总用地面积7929.4平方米,总建筑面积15091平方米,建设1栋6层综合楼,建筑面积9118平方米,1栋4层餐厅楼,建筑面积2052平方米,地下车库3921平方米,计划投资7115万元。

